Новая двухкомнатная квартира с Актом 16 в Сарафово – современное здание в 300 м от моря

 Сарафово

83 720 €

64м21300 €/м2

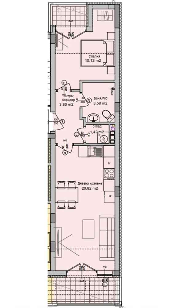
2 комнаты, 1 спальня 2 террасы, 1 санузел
Построен 2025
Без мебели
5 от 5
300 метров
Информация об обекте
  • ID:38427
  • город: Бургас
  • Построен:2025
  • Меблировка:Без мебели
  • Расстояние до моря:300 метров
  • Вид из окна:Море, Город
  • Сезонность:Круглогодичное исп.
  • Этажность:5 от 5
  • Конструкция:Кирпич
  • Отопление:Электричество
  • Охрана:Нет
  • Лифт:Да
Описание

Предлагаем новую двухкомнатную квартиру «под отделку» с Актом 16 (разрешение на эксплуатацию), расположенную в одном из самых предпочтительных и динамично развивающихся районов Бургаса – Сарафово, всего в 300 метрах от моря. Объект является отличным выбором как для тех, кто ищет новое жильё в спокойной морской среде, так и для инвесторов с долгосрочными планами.

Квартира находится в современном новом здании с лифтом, построенном с использованием высококачественных материалов и отличающемся современной архитектурой. Жильё предлагается в состоянии “под отделку”, что даёт будущим владельцам возможность завершить и обставить его полностью по своему вкусу и предпочтениям.

Район вокруг здания располагает совершенно новой инфраструктурой – новыми улицами, современным уличным освещением и ухоженной средой. Всего в 150 метрах находится новый парк с детской площадкой, что делает недвижимость особенно подходящей для семей с детьми и людей, ценящих зелёные зоны.

Локация очень удобная – центр Сарафово и автобусная остановка находятся в 3–4 минутах ходьбы, обеспечивая быструю связь с остальными районами города. В непосредственной близости, всего в двух минутах, расположен супермаркет.

Эта двухкомнатная квартира сочетает близость к морю, современное строительство и отличную городскую инфраструктуру, что делает её идеальным выбором для постоянного проживания, отдыха или надёжной инвестиции в одном из самых желанных прибрежных районов Бургаса.

Местоположение