Новая двухкомнатная квартира в Равде – гибкая схема оплаты и отличное расположение

 Равда, La Mer House

76 900 €

53м21447 €/м2

2 комнаты, 1 спальня 1 терраса, 1 санузел
Построен 2027
Без мебели
4 от 5
500 метров
Информация об обекте
  • ID:38754
  • город: Равда
  • Комплекс:La Mer House
  • Построен:2027
  • Меблировка:Без мебели
  • Расстояние до моря:500 метров
  • Вид из окна:Город
  • Сезонность:Круглогодичное исп.
  • Этажность:4 от 5
  • Конструкция:Кирпич
  • Отопление:Электричество
  • Охрана:Нет
  • Лифт:Да
Описание

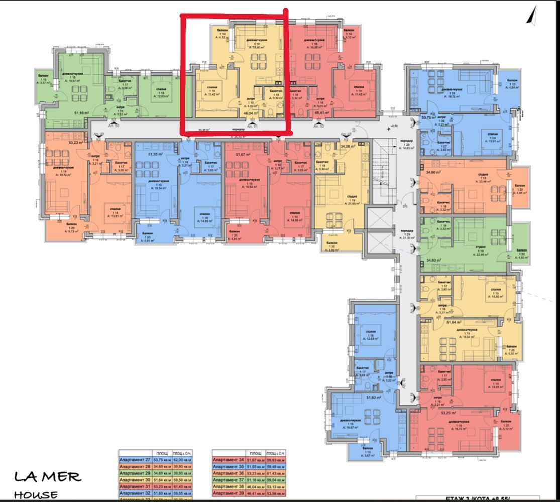
Представляем современную двухкомнатную квартиру площадью 53,13 м², расположенную на четвёртом этаже в новом эксклюзивном жилом комплексе в Равде. Недвижимость сочетает современную архитектуру, качественное строительство и функциональную планировку, что делает её отличным выбором как для личного проживания, так и для инвестиций.

Квартира предлагается полностью готовой «под ключ», что экономит ваше время, усилия и дополнительные расходы. Пространство спроектировано так, чтобы обеспечить максимальный комфорт и естественное освещение, создавая уютную и приятную атмосферу для жизни. Подходит как для круглогодичного проживания, так и для отдыха у моря.

Комплекс расположен в тихом и живописном месте, всего примерно в 500 метрах от пляжа, при этом вблизи находятся магазины, супермаркеты, рестораны и остановки общественного транспорта. Это обеспечивает удобство в повседневной жизни и быстрый доступ ко всем необходимым услугам.

В распоряжении владельцев: лифт, парковка, ухоженные общие зоны, детская площадка и зона барбекю, что способствует комфортному образу жизни. Строительство выполнено с использованием высококачественных материалов, обеспечивающих долговечность, надёжность и современный внешний вид здания.

Одним из главных преимуществ является возможность рассроченной оплаты до 2027 года, что делает покупку особенно доступной без необходимости полной оплаты сразу.

Эта квартира – идеальный вариант для надёжной инвестиции или уютного дома у моря, сочетающий спокойствие, удобство и современный стиль жизни.

Свяжитесь с нами для получения дополнительной информации и выберите свою новую недвижимость в Равде уже сегодня!

Без таксы за обслуживание!

Местоположение