Новый проект! Просторная квартира с одной спальней с западной ориентацией в центре Бургаса

 Братя Миладинови, Terex Residence

123 708 €

71м21750 €/м2

2 комнаты, 1 спальня 1 терраса, 1 санузел
Построен 2029
Без мебели
2 от 16
3 км
Информация об обекте
  • ID:38662
  • город: Бургас
  • Комплекс:Terex Residence
  • Построен:2029
  • Меблировка:Без мебели
  • Расстояние до моря:3 км
  • Вид из окна:Город
  • Сезонность:Круглогодичное исп.
  • Этажность:2 от 16
  • Конструкция:Кирпич
  • Отопление:Электричество
  • Охрана:Нет
  • Лифт:Да
Описание

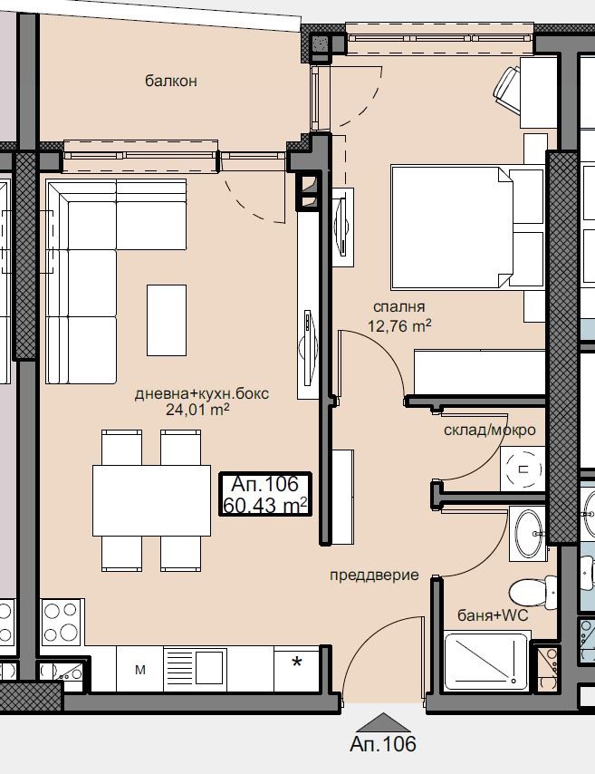
Предлагаем к продаже квартиру с одной спальней площадью 70,69 м², расположенную на первом жилом этаже над цокольным в новом современном здании в одном из самых востребованных районов Бургаса. Квартира отличается очень практичной и функциональной планировкой, разработанной для комфортного проживания или как инвестиция.

Жильё состоит из гостиной с кухонной зоной, уютной спальни, ванной с туалетом, кладовой/постирочной и коридора. Особое удобство представляет терраса с выходом из обеих комнат, обеспечивающая дополнительный свет и место для отдыха на открытом воздухе. Квартира продается по стандарту БДС, на чистовую отделку, что позволяет владельцу завершить интерьер по собственному вкусу.

Для удобства жителей на цокольном уровне предусмотрены продуктовый магазин, аптека и хозяйственный магазин, что делает повседневную жизнь очень комфортной. Имеется возможность приобрести парковочное место или гараж, что обеспечивает дополнительное удобство для владельцев автомобилей.

Здание спроектировано с акцентом на современный дизайн, энергоэффективность и комфорт, включая вентилируемый фасад, шумоизоляцию, тройные стеклопакеты, элитные лифты и аварийное электроснабжение общих зон, обеспечивающее надежность и безопасность. Контролируемый доступ и круглосуточное видеонаблюдение гарантируют спокойствие для вас и вашей семьи.

Расположение квартиры стратегическое и крайне удобное, в шаговой доступности от парка Славейков, торгового центра Галерия и основных городских бульваров, обеспечивая быстрый доступ к магазинам, ресторанам, транспорту и всем городским удобствам.

Этот объект — отличный выбор для тех, кто ищет сочетание удобства, функциональности и современного стиля, предлагая комфортное проживание и надежную инвестицию в одном из самых привлекательных районов Бургаса.

Местоположение