Панорамная двухкомнатная квартира на последнем этаже у пляжа в Сарафово – без таксы за обслуживание

 Сарафово, Skarabey Puzzle

92 032 €

74м21250 €/м2

2 комнаты, 1 спальня 1 терраса, 1 санузел
Построен 2027
Без мебели
5 от 5
400 метров
Информация об обекте
  • ID:37780
  • город: Бургас
  • Комплекс:Skarabey Puzzle
  • Построен:2027
  • Меблировка:Без мебели
  • Расстояние до моря:400 метров
  • Вид из окна:Город
  • Сезонность:Круглогодичное исп.
  • Этажность:5 от 5
  • Конструкция:Кирпич
  • Отопление:Электричество
  • Охрана:Нет
  • Лифт:Да
Описание


Предлагаем двухкомнатную квартиру в строящемся жилом доме в одном из самых спокойных и престижных районов Бургаса – Сарафово. Локация сочетает тишину и уют с отличной связностью — всего несколько минут пешком до пляжа, с удобным доступом к аэропорту и центру города. Район отличается благоустроенной инфраструктурой и всеми необходимыми удобствами поблизости.

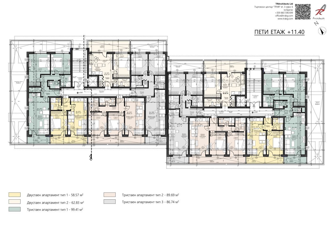
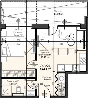
Общая площадь квартиры — 73,63 м². Она расположена на 5-м (последнем) этаже, с западной ориентацией — уютный дневной свет и красивые виды на закат. Планировка включает светлую гостиную с кухонной зоной, отдельную спальню, ванную комнату с WC и удобный балкон. Высокие потолки и большие окна создают ощущение простора и комфорта, а последний этаж гарантирует дополнительное уединение. В здании предусмотрен лифт.

Квартира сдаётся по БДС — стены под шпаклёвку, полы под стяжку, что даёт возможность оформить интерьер по своему вкусу. Проект реализуется с использованием современных технологий и качественных материалов, с акцентом на энергоэффективность и долгосрочную инвестиционную ценность. Без таксы поддержки — редкое преимущество для этого района. Здание спроектировано на 5 этажей с рационально распределёнными студиями, одно-, двух- и трёхкомнатными квартирами. В комплексе предусмотрены два отдельных входа с контролем доступа, лифты, открытые парковочные места и подземные гаражи. Возможна покупка гаража и/или парковочного места.

Локация идеально подходит как для круглогодичного проживания, так и для отдыха или сдачи в аренду — близость к морю, быстрый доступ к ключевым точкам города и ухоженная среда.

  • Старт строительства: май 2025 г.
  • Ввод в эксплуатацию (Акт 16): июнь 2027 г.

Свяжитесь с нами для получения дополнительной информации, планов квартиры и консультации на месте. Это отличная возможность приобрести дом у моря в престижном районе Бургаса — со спокойствием, которое вы ищете, и потенциалом, который вы заслуживаете.

Местоположение