Панорамная трёхкомнатная квартира с большой террасой рядом с морем в Помории – отличная инвестиция и комфортное жильё

 Поморие, Tuthon

129 795 €

144м2900 €/м2

3 комнаты, 2 спальни 1 терраса, 1 санузел
Построен 2028
Без мебели
5 от 5
200 метров
Информация об обекте
  • ID:37772
  • город: Поморие
  • Комплекс:Tuthon
  • Построен:2028
  • Меблировка:Без мебели
  • Расстояние до моря:200 метров
  • Вид из окна:Город
  • Сезонность:Круглогодичное исп.
  • Этажность:5 от 5
  • Конструкция:Кирпич
  • Отопление:Электричество
  • Охрана:Нет
  • Лифт:Да
Описание


Представляем просторную трёхкомнатную квартиру в современном новом жилом комплексе, всего в нескольких минутах ходьбы от моря и центра города Поморие, область Бургас. Недвижимость идеально подходит как для личного проживания, так и для инвестиций с высоким потенциалом сдачи в аренду – сезонной и круглогодичной.

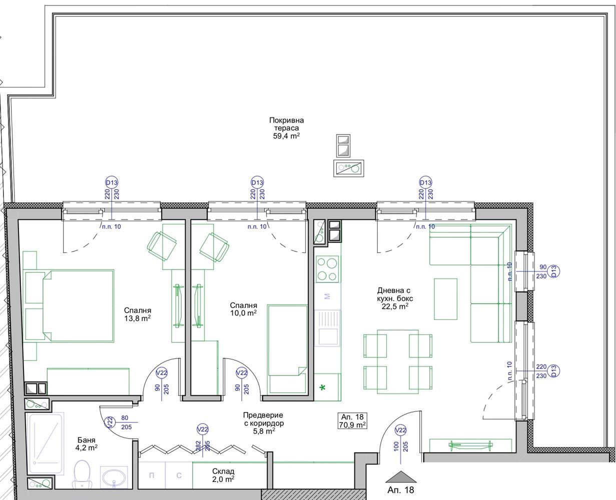
Квартира общей площадью 144,22 м² расположена на пятом жилом этаже здания с лифтом, с ориентацией на северо-восток. Большая панорамная терраса площадью 66,47 м² расширяет жилое пространство, становясь естественным продолжением гостиной – идеальное место для отдыха, барбекю или городского озеленения. Функциональная планировка включает входной холл/коридор, просторную гостиную с кухней и выходом на террасу, две отдельные спальни, ванную комнату с туалетом и внутреннее кладовое помещение. Светлые интерьеры и практичная планировка обеспечивают комфорт повседневной жизни, а терраса позволяет наслаждаться панорамными видами и утренним солнцем без перегрева в послеобеденное время.

Расположение идеально сбалансировано – тихо и аккуратно, но при этом очень удобно: в нескольких минутах – известные лечебные грязевые ванны, медицинские центры, пляж, футбольный стадион, центр города, магазины, рестораны и все необходимые услуги. Район популярен как среди туристов, так и среди постоянных жителей, что гарантирует стабильный интерес при сдаче в аренду.

Статус и параметры строительства: квартира продается под чистовую отделку, что позволяет завершить интерьер по вашему вкусу и стилю. Строительство начинается в ноябре 2025 года, планируемое завершение (Акт 16) – до конца 2027 года. Здание имеет современный вид и функциональные общие зоны, лифт обеспечивает удобный доступ на верхние этажи. Свяжитесь с нами для получения дополнительной информации, планов и организации просмотра. Эта недвижимость сочетает современный дизайн, отличное расположение и разумную цену – редкая возможность на рынке Помории.

Местоположение