Пловдив: трехкомнатная квартира в стройке, с возможностью рассрочки платежа

 Пловдив

123 165 €

105м21173 €/м2

3 комнаты, 2 спальни 1 терраса, 2 санузлы
Построен 2028
Без мебели
6 от 10
Информация об обекте
  • ID:37444
  • город: Тракия
  • Построен:2028
  • Меблировка:Без мебели
  • Вид из окна:Город
  • Сезонность:Круглогодичное исп.
  • Этажность:6 от 10
  • Конструкция:Кирпич
  • Отопление:Электричество
  • Охрана:Нет
  • Лифт:Да
Описание

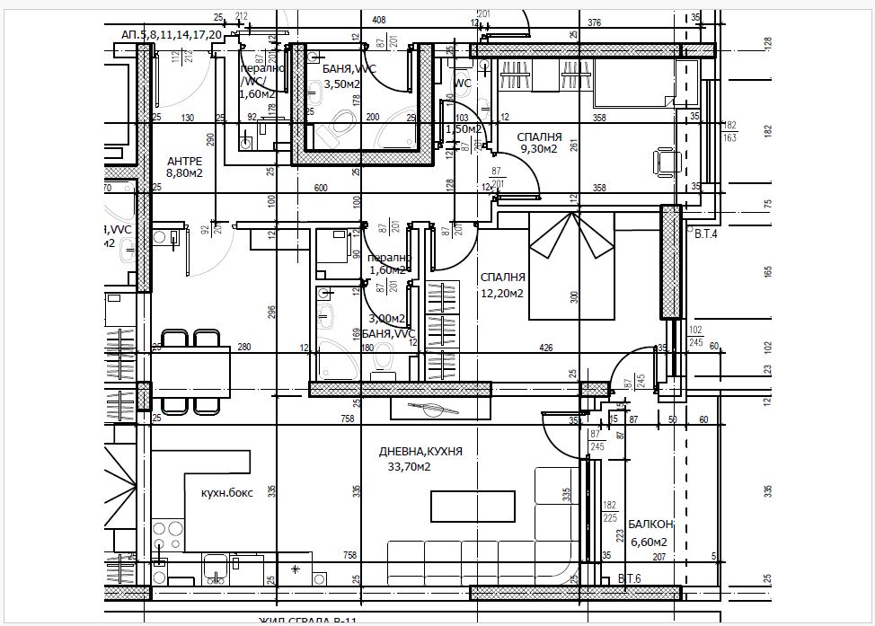
Представляем вам возможность приобрести трехкомнатную квартиру в одном из самых быстроразвивающихся и востребованных районов Пловдива - жк. Тракия. С площадью 105 м², эта новостройка предложит вам комфорт, современный дизайн и все удобства современного жилого здания.

Недвижимость является частью здания, спроектированного с вниманием к деталям и высоким стандартом строительства, обеспеченным авторитетной компанией с рядом успешных проектов за спиной. Завершение объекта с актом 16 запланировано на декабрь 2028 года. Наличие лифта делает доступ к жилью удобным и быстрым.

Квартира располагает:

- Просторной гостиной, которая обеспечивает пространство для семьи.

- Две спальни, идеальные для семей или для создания рабочего места дома.

- Балкон, который предлагает место для отдыха на свежем воздухе.

- Ванной комнатой с туалетом.

- Отдельной туалетной комнатой

- Мокрой комнатой.

Оплата за недвижимость гибкая и учитывает ваши возможности: только 10% при подписании предварительного договора, 40% при достижении акта 14 и остальные 50% при завершении акта 16.

Эта квартира - не только прекрасная возможность приобрести новый дом, но и хорошая инвестиция в ваше будущее. Для получения дополнительной информации и организации просмотра, не стесняйтесь обращаться к нам.

Местоположение