Привлекательная двухкомнатная квартира с видом на море в престижном и зелёном районе Сарафово

 Сарафово

92 600 €

71м21300 €/м2

2 комнаты, 1 спальня 1 терраса, 1 санузел
Построен 2025
Без мебели
5 от 5
300 метров
Информация об обекте
  • ID:38428
  • город: Бургас
  • Построен:2025
  • Меблировка:Без мебели
  • Расстояние до моря:300 метров
  • Вид из окна:Море
  • Сезонность:Круглогодичное исп.
  • Этажность:5 от 5
  • Конструкция:Кирпич
  • Отопление:Электричество
  • Охрана:Нет
  • Лифт:Да
Описание

Предлагаем привлекательную двухкомнатную квартиру с видом на море, расположенную в одном из самых востребованных и престижных районов Бургаса – Сарафово, известного своей спокойной атмосферой, чистым воздухом и близостью к морю. Недвижимость находится в современном жилом районе с отличной инфраструктурой, что делает её идеальной как для постоянного проживания, так и для инвестиции.

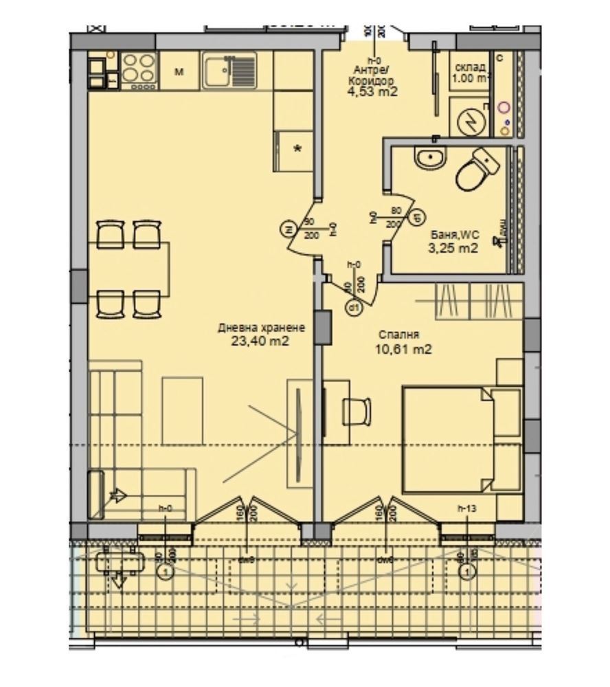
Квартира имеет общую площадь 71,24 м² и расположена на пятом этаже современного жилого здания. Из квартиры открывается красивый вид на море, создающий ощущение простора и комфорта, усиливая приятную атмосферу дома. Недвижимость имеет Акт 16 (разрешение на эксплуатацию) и предлагается под отделку, что позволяет будущим владельцам завершить и обставить квартиру полностью по своему вкусу и стилю.

Расположение является одним из главных преимуществ квартиры. Она находится рядом с комплексом Atlantis, обеспечивая легкий доступ к различным удобствам, ресторанам и сервисам. Окружающая территория характеризуется совершенно новой инфраструктурой – новые улицы, современное уличное освещение и ухоженные пространства создают ощущение порядка и комфорта.

Всего в 150 метрах находится парк с детской площадкой, идеальное место для отдыха, прогулок и активного времяпровождения на свежем воздухе. Центр Сарафово находится всего в 3–4 минутах ходьбы, где расположены магазины, кафе и сервисы. Автобусная остановка в пешей доступности обеспечивает быстрый транспорт до других районов города, а супермаркет – всего в двух минутах.

Эта квартира сочетает современное строительство, отличное расположение, вид на море и возможность индивидуального оформления, что делает её отличным выбором для тех, кто ищет комфортный дом у моря или надежную инвестицию в одном из самых востребованных районов Бургаса.

Местоположение