Просторная квартира с одной спальней в тихом и привлекательном районе Равды

 Равда, Summer Ravda

59 900 €

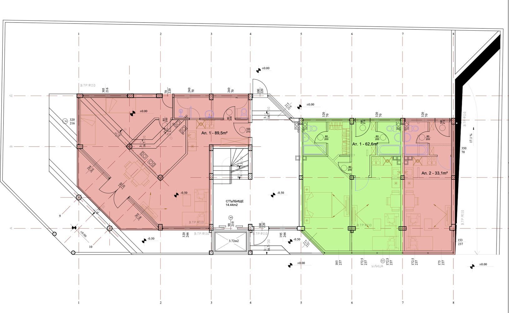
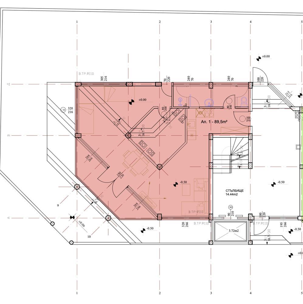
85м2702 €/м2

2 комнаты, 1 спальня 1 терраса, 1 санузел
Построен 2009
Без мебели
0 от 3
700 метров
Информация об обекте
  • ID:38782
  • город: Равда
  • Комплекс:Summer Ravda
  • Построен:2009
  • Меблировка:Без мебели
  • Расстояние до моря:700 метров
  • Вид из окна:Город
  • Сезонность:Круглогодичное исп.
  • Этажность:0 от 3
  • Конструкция:Кирпич
  • Отопление:Электричество
  • Охрана:Нет
  • Лифт:Нет
Описание

Представляем вам очень просторную квартиру с одной спальней на первом этаже общей площадью 85,32 м², расположенную в тихом и спокойном районе Равды. Имущество предлагается без мебели, что дает новому владельцу возможность обставить его по своему вкусу и создать дом мечты или оазис для отдыха. Квартира имеет Акт 16, обеспечивающий право пользования и спокойствие при покупке.

Квартира впечатляет просторными и светлыми комнатами, обеспечивающими комфорт и свободу передвижения. Отличная планировка позволяет создать уютную гостиную с кухонным уголком, отдельную спальню и ванную комнату, предоставляя всё необходимое для круглогодичного проживания или отдыха.

Расположение представляет собой идеальное сочетание спокойствия и удобства – квартира находится в тихом месте, вдали от шума, но близко к городской и курортной инфраструктуре – магазины, кафе, рестораны и пляж всего в нескольких минутах. Этот объект является отличным выбором для тех, кто ищет просторное жильё с потенциалом, в сочетании с тихим и спокойным районом, рядом со всем необходимым для комфортной жизни. Отличается возможностью персонализированной меблировки, функциональной планировкой и хорошей связью с остальной частью города и курорта. Для тех, кто ищет спокойный и функциональный дом на Южном Черноморье, это возможность приобрести жильё, которое объединяет удобство, тишину и доступ ко всем современным удобствам.

Местоположение