Спокойствие и гармония в 300 м от пляжа: двухкомнатная квартира с возможностью перепланировки в трёхкомнатную – Сарафово, новостройка

 Сарафово

110 000 €

89м21239 €/м2

2 комнаты, 1 спальня 1 терраса, 1 санузел
Построен 2025
Без мебели
3 от 5
300 метров
Информация об обекте
  • ID:37786
  • город: Бургас
  • Построен:2025
  • Меблировка:Без мебели
  • Расстояние до моря:300 метров
  • Вид из окна:Город
  • Сезонность:Круглогодичное исп.
  • Этажность:3 от 5
  • Конструкция:Кирпич
  • Отопление:Электричество
  • Охрана:Нет
  • Лифт:Да
Описание


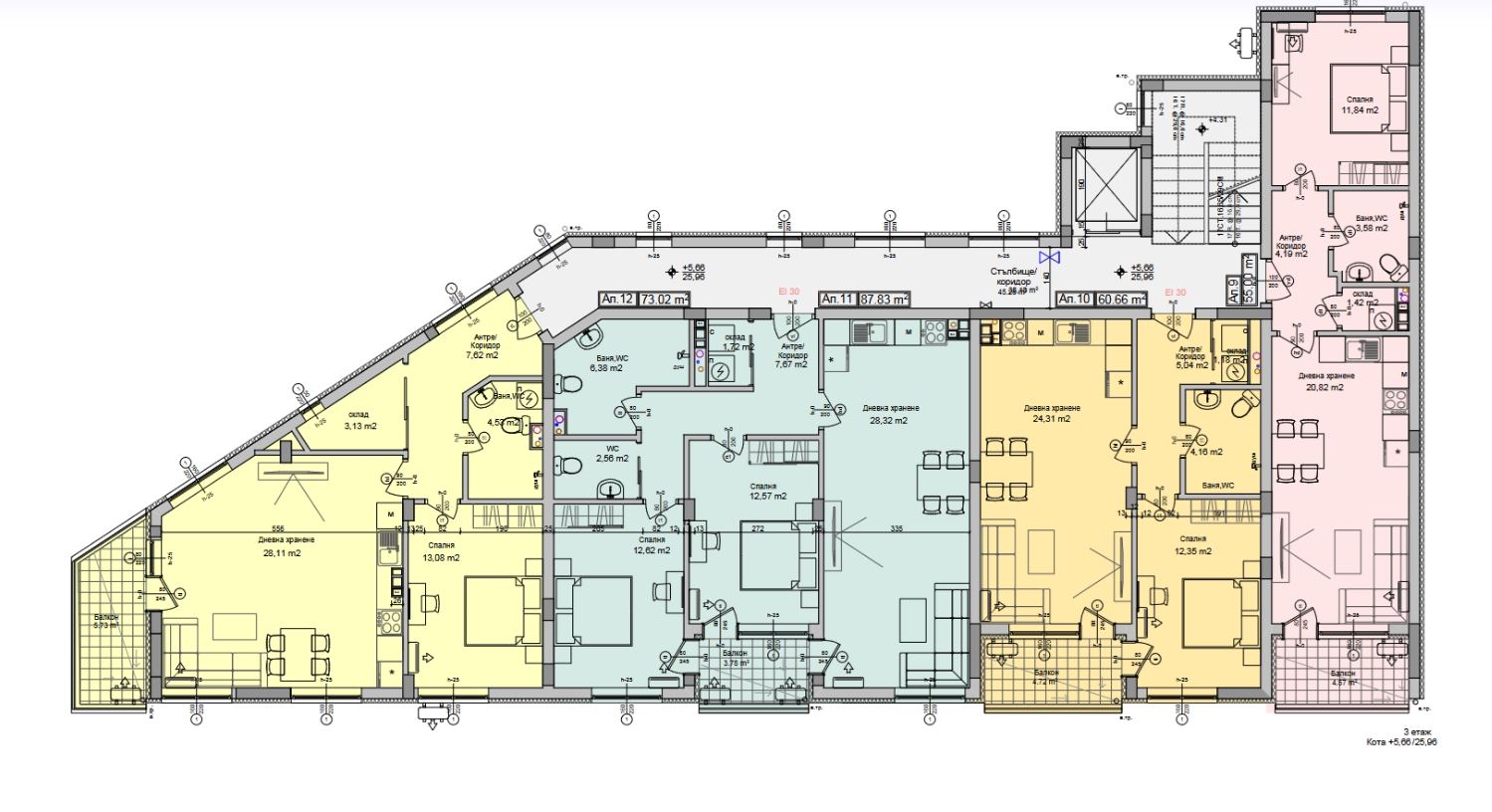
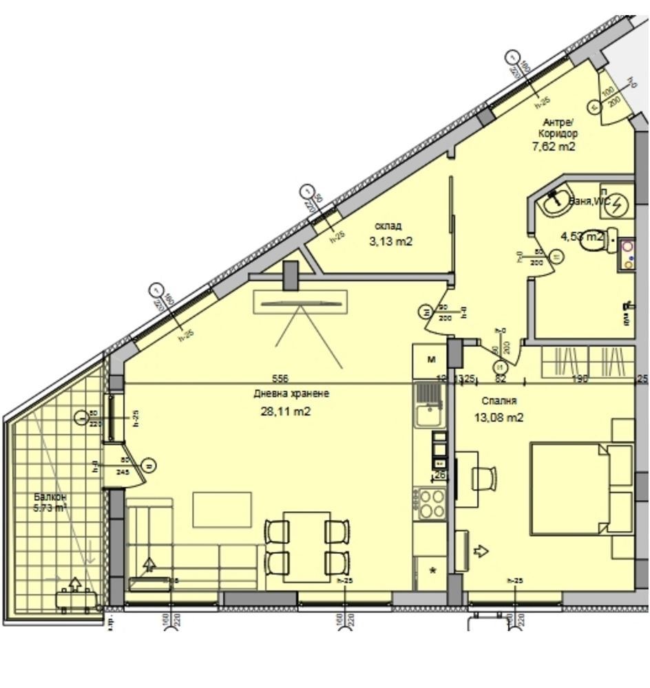
Предлагаем просторную и светлую квартиру в престижном районе Сарафово, Бургас – идеальный выбор для дома у моря, дачи или инвестиции с отличным потенциалом аренды. Недвижимость в новом доме расположена на третьем этаже современного здания с лифтом, всего в 300 метрах от золотых пляжей и моря. Общая площадь – 88,77 м². Планировка: прихожая, просторная гостиная с кухней и выходом на удобную террасу, отдельная спальня, большая и практичная кладовая, а также ванная с туалетом. По проекту квартира двухкомнатная, но благодаря функциональной планировке её можно перепланировать в трёхкомнатную – удобное решение для семьи или тех, кто ищет дополнительную спальню или рабочее место.

Квартира продаётся на этапе «черновая отделка» – это преимущество для тех, кто хочет воплотить собственный стиль и интерьерные идеи без компромиссов. Просторные помещения, большие окна и выход на террасу создают ощущение воздуха и свободы, а современное здание с лифтом обеспечивает комфорт в повседневной жизни.

Локация отличная: всего в нескольких минутах от пляжа, с быстрым доступом к набережной для утренних прогулок и вечернего отдыха. Рядом магазины, кафе и комплекс «Атлантис», что гарантирует все необходимые удобства в шаговой доступности. Район тихий, приятный и предпочитаемый как для круглогодичного проживания, так и для сезонного отдыха. Без таксы за обслуживание.

Если вы ищете сочетание простора, удобства и морского уюта, эта квартира в Сарафово – отличный выбор. Свяжитесь с нами для получения дополнительной информации и организации просмотра.

Местоположение