Светлая и просторная двухкомнатная квартира в районе Зорница – современный дом среди зелени и удобств в Бургасе

 Зорница, Zornitsa 3

146 942 €

86м21700 €/м2

2 комнаты, 1 спальня 1 терраса, 1 санузел
Построен 2027
Без мебели
2 от 4
2 км
Информация об обекте
  • ID:38509
  • город: Бургас
  • Комплекс: Zornitsa 3
  • Построен:2027
  • Меблировка:Без мебели
  • Расстояние до моря:2 км
  • Вид из окна:Город
  • Сезонность:Круглогодичное исп.
  • Этажность:2 от 4
  • Конструкция:Кирпич
  • Отопление:Электричество
  • Охрана:Нет
  • Лифт:Да
Описание

Предлагаем на продажу солнечную и функциональную двухкомнатную квартиру, расположенную на втором жилом этаже в новом современном здании, сочетающем современную архитектуру, качественное строительство и комфортную жилую среду. Объект находится в одном из самых предпочтительных и озеленённых районов Бургаса – Зорница, районе, который предлагает спокойствие, чистый воздух и отлично развитую инфраструктуру, в сочетании с быстрым доступом к центру города и морю.

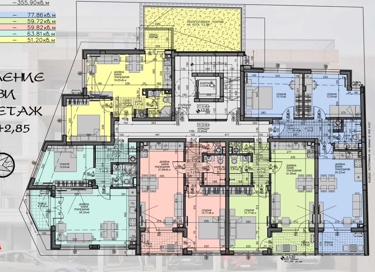
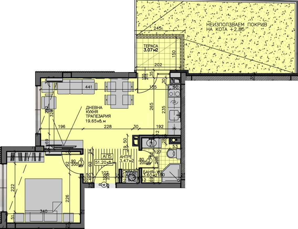
Квартира имеет общую площадь 86,44 м² и восточную ориентацию, что обеспечивает приятное естественное освещение в течение всего дня и создаёт тёплую и уютную атмосферу в доме. Жильё спроектировано с вниманием к функциональности и удобству современного городского жителя. Планировка включает просторную гостиную с кухней и столовой зоной, комфортную спальню, ванную комнату с туалетом и террасу с выходом из гостиной, предоставляющую возможность для приятного отдыха на открытом воздухе.

Объект предлагается в состоянии по БДС, что позволяет новым владельцам завершить и обустроить его полностью по своему вкусу и стилю. Здание построено с использованием высококачественных материалов, современных инженерных систем и энергоэффективных решений, гарантирующих низкие расходы на обслуживание и долгосрочный комфорт. Дополнительным преимуществом является отсутствие платы за обслуживание, что делает объект ещё более привлекательным как для личного проживания, так и для инвестиций.

Локация предлагает отличный баланс между спокойствием и транспортной доступностью. В непосредственной близости находятся Морской сад, центральная часть города, основные транспортные артерии, школы, детские сады, спортивные сооружения, остановки общественного транспорта, а также разнообразие магазинов, супермаркетов и заведений. Район активно развивается и предпочтителен для круглогодичного проживания, что дополнительно повышает инвестиционную ценность недвижимости.

Эта квартира является отличным выбором для людей, ищущих современный, светлый и уютный дом в спокойной и зелёной среде, а также для инвесторов, которые ценят хорошее расположение, качественное новое строительство и потенциал будущей доходности. Если вы ищете жильё, сочетающее комфорт, функциональность и престижное расположение, этот объект заслуживает вашего внимания.

Местоположение