Трёхкомнатная квартира в новом проекте в Поморие – в нескольких минутах от пляжа и лечебницы

 Поморие, Tuthon

120 045 €

96м21250 €/м2

3 комнаты, 2 спальни 1 терраса, 1 санузел
Построен 2028
Без мебели
1 от 5
200 метров
Информация об обекте
  • ID:37768
  • город: Поморие
  • Комплекс:Tuthon
  • Построен:2028
  • Меблировка:Без мебели
  • Расстояние до моря:200 метров
  • Вид из окна:Город
  • Сезонность:Круглогодичное исп.
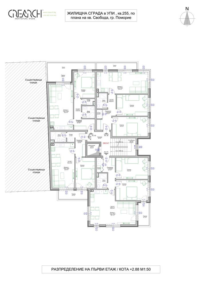
  • Этажность:1 от 5
  • Конструкция:Кирпич
  • Отопление:
  • Охрана:Нет
  • Лифт:Да
Описание


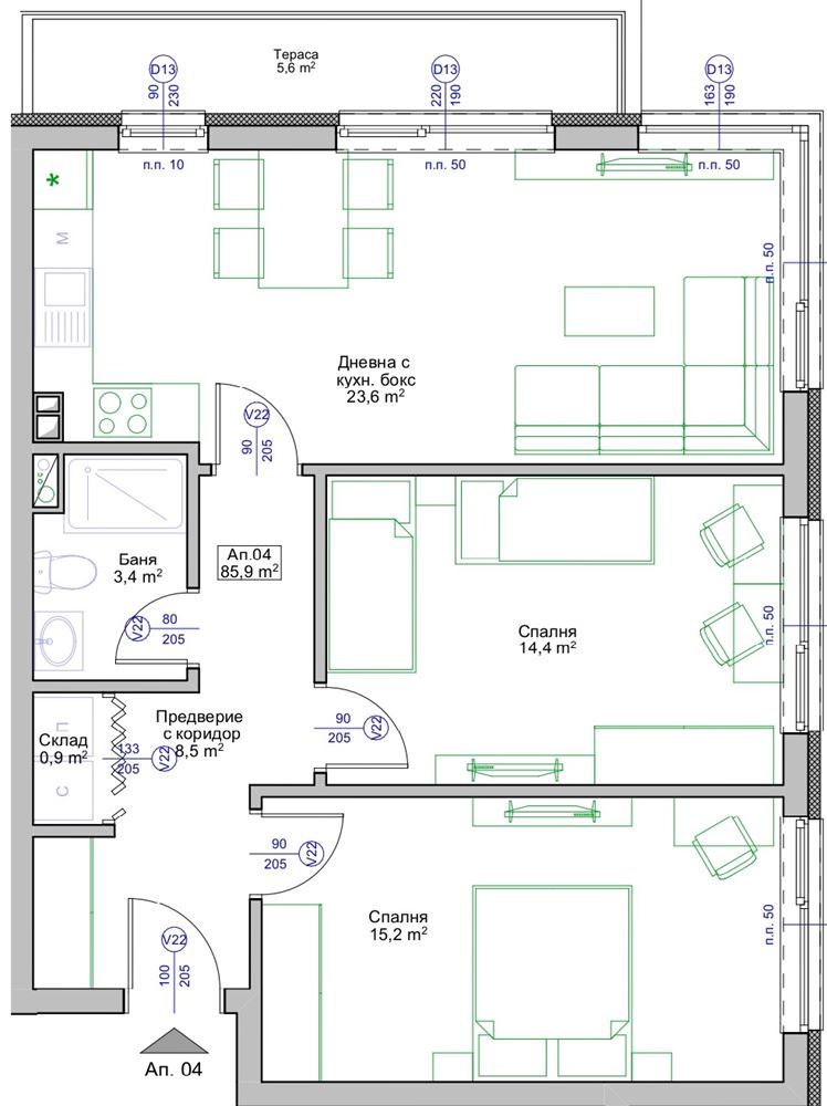
Представляем вам просторную трёхкомнатную квартиру в строящемся жилом доме в одном из самых востребованных туристических районов – городе Поморие. Площадь недвижимости составляет 96,04 м², расположена на первом этаже и сочетает привлекательное прибрежное расположение с удобствами городской среды – отличный выбор как для круглогодичного проживания, так и для отдыха или инвестиций. Здание расположено на тихой и спокойной улице «Тутхон» в хорошо развитом районе. В пешей доступности находятся знаменитые лечебные грязевые бани, медицинские центры, широкий пляж, футбольный стадион, центр города и множество магазинов. Расположение обеспечивает идеальный баланс между спокойствием и быстрым доступом ко всему необходимому для комфортной жизни и качественного отдыха.

Квартира трёхкомнатная, с практичной концепцией планировки: гостиная с местом для кухонного блока, две отдельные спальни, одна ванная с туалетом, кладовое помещение и один балкон. Продажа на стадии черновой отделки, что даёт свободу выбрать материалы и отделку по вашему стилю и бюджету. Наличие лифта обеспечивает удобство, а расположение на первом этаже подходит для семей с детьми, пожилых людей и лиц с ограниченной подвижностью.

Строительство начинается в ноябре 2025 года с сроком выполнения 24 месяца. Это позволяет спокойно планировать переезд или будущую сдачу в аренду, а также следить за процессом строительства с самого начала. Свяжитесь с нами для получения подробной информации, архитектурных планов и организации встречи. Мы окажем помощь на каждом этапе – от выбора недвижимости до окончательного приобретения.

Без платы за обслуживание!

Местоположение