Трехкомнатная квартира в новом комплексе с красивыми видами

 Равда, Elitonia Gardens 4

ПРОДАН

3 комнаты, 2 спальни 2 террасы, 1 санузел
Построен 2026
Без мебели
5 от 5
Парковка
300 метров
Информация об обекте
  • ID:33592
  • город: Равда
  • Комплекс:Elitonia Gardens 4
  • Построен:2026
  • Меблировка:Без мебели
  • Расстояние до моря:300 метров
  • Вид из окна:Город, Бассейн, Улица
  • Сезонность:Круглогодичное исп.
  • Этажность:5 от 5
  • Конструкция:Кирпич
  • Отопление:Электричество
  • Паркинг:Парковка
  • Охрана:Да
  • Лифт:Да
Описание

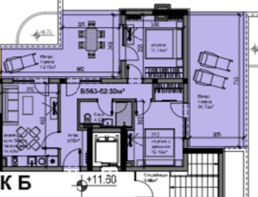
Квартира с двумя отдельными спальнями в новом комплексе в Равде представляет собой уютное жилье площадью 72,85 м2, расположенное на пятом этаже пятиэтажного здания. Она состоит из просторной прихожей, комфортабельной гостиной с интегрированной кухней, двух уютных спален, стильной ванной комнаты и двух балконов, которые могут служить отличным местом для отдыха или приема свежего воздуха. Квартира предлагается с отделкой под ключ, что обеспечит новому владельцу готовность к проживанию без дополнительных трудозатрат. Отделка выполнена с использованием высококачественных материалов, что подчеркивает внимание к деталям и стремление к высокому стандарту качества. Новый комплекс, в который вписана квартира, представляет собой архитектурное произведение современного стиля, олицетворяя в себе внимание к дизайну и качеству строительства. Состоящий из двух корпусов, комплекс предоставляет покупателям разнообразие квартир различной площади, удовлетворяя различные потребности. За дополнительную плату предлагаются парковочные места как во дворе комплекса, так и в подземном гараже, что обеспечивает удобство и безопасность для владельцев автомобилей. Это важное дополнение к жизни в новом комплексе, где забота о комфорте и удобстве жителей становится приоритетом.

Местоположение